Ижевск, Старый Аэропорт, Строящийся жилой дом
Площадь
Жилая
Кухня
Отделка
Класс жилья
Комнат
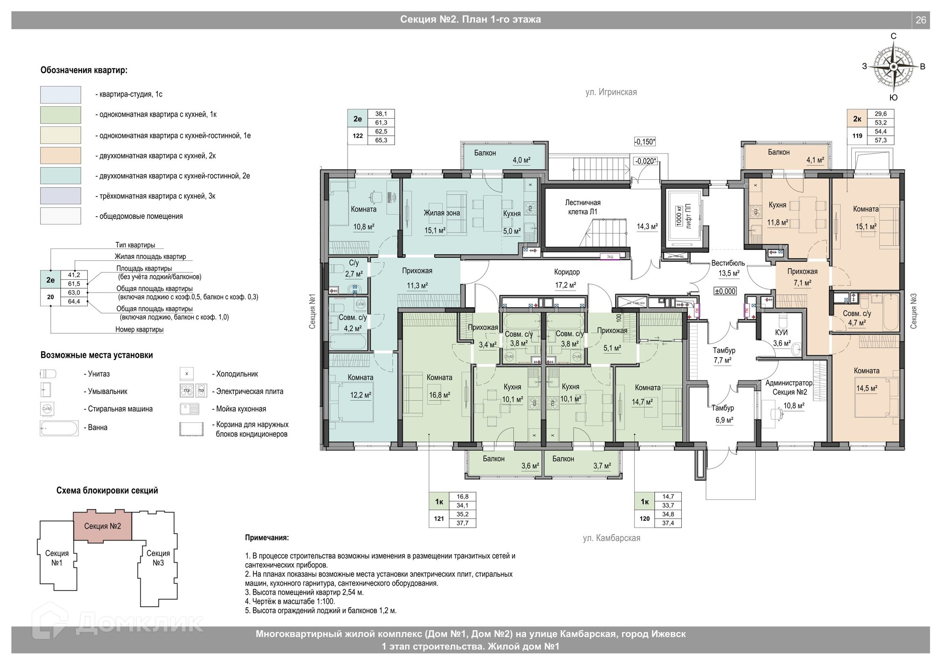
Номер кв.
Этаж
Продается 1-комнатная квартира в современном жилом комплексе "ЖК Крылья" 🏢. Квартира расположена на 1-м этаже 20-этажного дома. Прекрасный выбор для семьи.
Чтобы забронировать эту квартиру бесплатно и проверить актуальную стоимость — позвоните нам прямо сейчас! 📞
ЖК «Крылья» — это комплекс, который объединяет в себе современные технологичные инженерные решения и стильную архитектуру. Жилой комплекс находится в Первомайском районе города Ижевск с развитой инфраструктурой и активно развивающейся жилой застройкой. Преимущества локации: Современный развивающийся район. Рядом транспортная остановка. Вблизи расположены дет/сад №280 и №11, школа №74. Гипермаркет «Лента» и строительный магазин «Лемана ПРО». Библиотека им. В.Г. Короленко. Многофункциональный двор: мы создали пространство, где каждый сможет найти занятие по душе. Уголки для отдыха и активности, уединения и общения, и все вместе они составляют приватную среду, которая становится органичным продолжением дома. Разнообразие игровых зон и тематических площадок для детей разного возраста: качели, карусели и интерактивные зоны. В жилом комплексе созданы все условия для спорта и активного образа жизни. В благоустроенном дворе с детской и спортивными площадками можно заниматься уличной гимнастикой, разминаться на турниках или же просто спокойно прогуляться по дорожкам среди зелени и цветов. «Островки» отдыха с удобными скамейками в окружении зелени позволят расслабиться и снять стресс. А ландшафтный дизайн с яркими клумбами и цветниками сделают прогулки приятными и поднимут настроение. огороженная территория входные группы на уровне земли двор без машин система видеонаблюдения по периметру современное благоустройство придомовой территории качественные материалы система «Умный Дом» дизайнерские холлы современные бесшумные лифты просторные кладовые квартиры с авторскими планировками подземная парковка наземная парковка ЖК «Крылья» – жизнь с размахом!
Срок сдачи: 1 кв. 2027 г.
Срок сдачи: 1 кв. 2027 г.
Площади квартир
Этажность
Класс жилья
Корпусов
Стены