Обзор квартиры в "ЖК "Новый Сосновый""
В продаже 2-комнатная квартира в современном жилом комплексе "ЖК "Новый Сосновый"" 🏢.
Квартира расположена на -м этаже 19-этажного дома.
Прекрасный выбор для семьи.
Удобная планировка
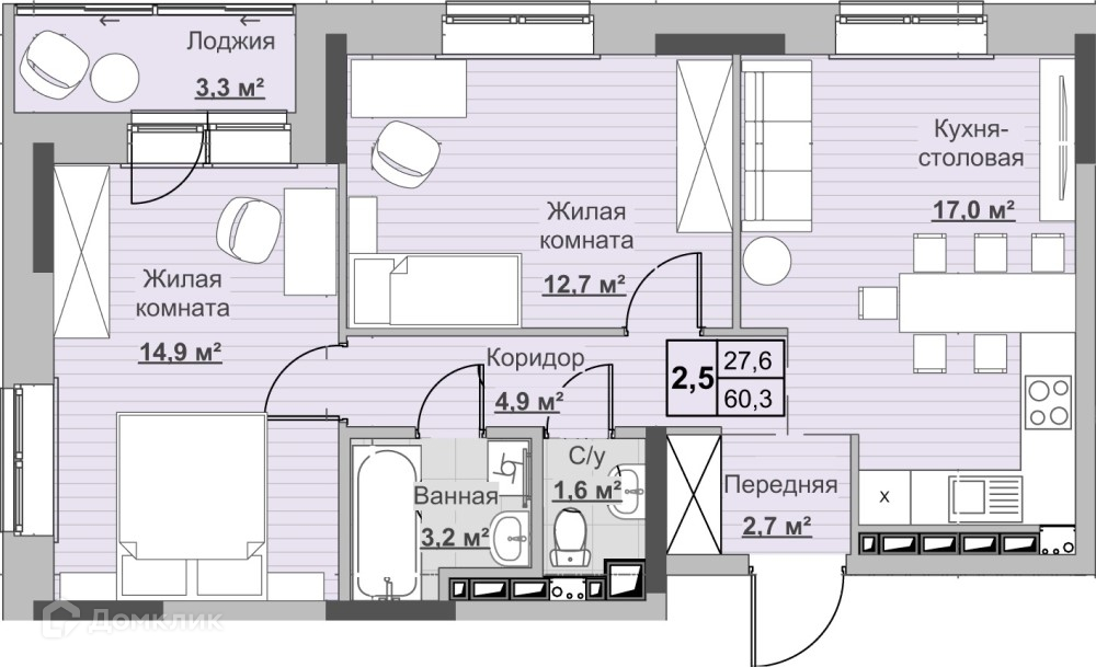
- ✅ Общая площадь: 60.2 м².
- ✅ Просторная жилая площадь: 27.6 м².
- ✅ Кухня: 17 м² — идеальна для семейных ужинов.
Особенности квартиры
- 🔧 Вариант отделки: без отделки. Готовая база для вашего интерьера.
- 🌞 Панорамное остекление наполняют помещения естественным светом.
- 🌿 Класс жилья: Комфорт — высокое качество строительства.
Финансы и ипотека
- 💳 Ипотека от 49 953 руб/мес.
- 🏦 Доступны льготные программы господдержки.
- 🤝 Покупка напрямую от застройщика гарантирует спокойствие.
Для бесплатного бронирования и проверить актуальную стоимость — позвоните нам прямо сейчас! 📞
Характеристики новостройки в ЖК "Новый Сосновый"
- Номер квартиры:
- Вариант отделки: без отделки
- Общая площадь: 60.2 м²
- Жилая площадь: 27.6 м²
- Площадь кухни: 17 м²
- Класс жилья: Комфорт
- Количество комнат: 2-комнатная квартира
- Этаж:
- Этажность дома: 19
Полезная информация о ЖК "Новый Сосновый"