Удмуртская Республика, Завьяловский район, с. Первомайский, улица Архитектора Сергея Макарова, 1/1
Обзор квартиры в "ЖК Санвилл"
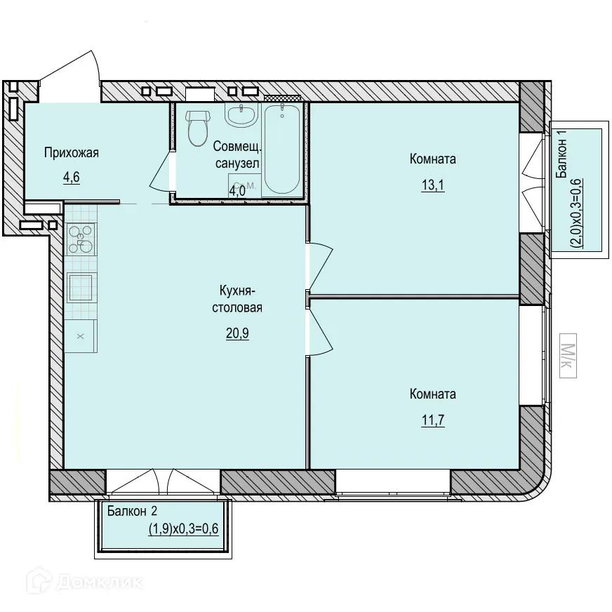
Продается 2-комнатная квартира в востребованном жилом комплексе "ЖК Санвилл" 🏢.
Квартира расположена на 2-м этаже 6-этажного дома.
Прекрасный выбор для инвестиций.
Удобная планировка
- ✅ Общая площадь: 56 м².
- ✅ Просторная жилая площадь: 25 м².
- ✅ Кухня: 21 м² — эргономичное пространство.
Особенности квартиры
- 🔧 Вариант отделки: предварительная отделка. Готовая база для вашего интерьера.
- 🌞 Большие окна наполняют помещения естественным светом.
- 🌿 Класс жилья: Комфорт — благоустроенная территория.
Выгодные условия покупки
- 💳 Ипотека от 46 014 руб/мес.
- 🏦 Подходит под семейную и IT ипотеку.
- 🤝 Покупка напрямую от застройщика гарантирует спокойствие.
Чтобы забронировать эту квартиру бесплатно и зафиксировать цену — свяжитесь с нами прямо сейчас! 📞
Характеристики новостройки в ЖК Санвилл
- Номер квартиры: 18
- Вариант отделки: предварительная отделка
- Общая площадь: 56 м²
- Жилая площадь: 25 м²
- Площадь кухни: 21 м²
- Класс жилья: Комфорт
- Количество комнат: 2-комнатная квартира
- Этаж: 2
- Этажность дома: 6
Полезная информация о ЖК Санвилл