Ижевск, Татарбазар м-н, Строящийся жилой дом
Площадь
Жилая
Кухня
Отделка
Класс жилья
Комнат
Номер кв.
Этаж
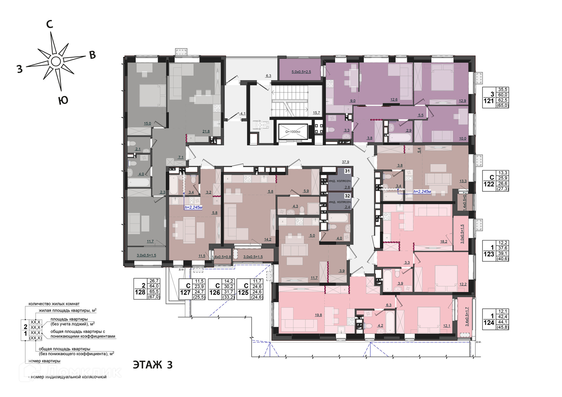
Доступна к покупке 2-комнатная квартира в новом жилом комплексе "ЖК "Соседи"" 🏢. Квартира расположена на 3-м этаже 18-этажного дома. Отличный вариант для семьи.
Для бесплатного бронирования и проверить актуальную стоимость — свяжитесь с нами прямо сейчас! 📞
DRG GRUPP представляет второй дом жилого комплекса «Соседи». Стильный, современный двухсекционный дом расположиться на улице Леваневского, в Ленинском районе г. Ижевска. Фасады жилого комплекса будут сочетать в себе все самые современные решения - «мокрый фасад», облицовка навесными панелями, а также художественная кладка кирпича, которая характерна для старой Европы. Двор жилого комплекса будет расположен на стилобате. Его благоустройство предполагает обустроенную детскую зону и зону отдыха для взрослых. Для малышей на придомовой территории дома DRG GRUPP предусмотрели уникальную площадку с песочницей, качественными детскими игровым и спортивным комплексом из натуральных материалов. В доме будут представлены все форматы квартир от студий до просторных семейных квартир. Холл второго дома «Соседи» будет выполнен по индивидуальному дизайн-проекту и продолжит общую концепцию дома, тем самым создавая нужное впечатление у тех, кто попадает в дом впервые: рассказывая об уюте и концепции дома, подчеркивая статус владельцев квартир. Помимо красоты проекта, компания также позаботилась и об его функциональности: удобные кладовые на этажах, наземный крытый паркинг, отсутствие мусоропровода и теплые лоджии. Для Вашей безопасности в проекте будет предусмотрено видеонаблюдение и ограждение территории. Срок сдачи дома – 2 квартал 2026 года плюс 6 месяцев на передачу квартир.
Срок сдачи: 4 кв. 2023 г.
Срок сдачи: 4 кв. 2023 г.
Площади квартир
Этажность
Класс жилья
Корпусов
Стены